ARCHITECTURE PORTFOLIO

Revitalization of Litorânea

Floor Plans

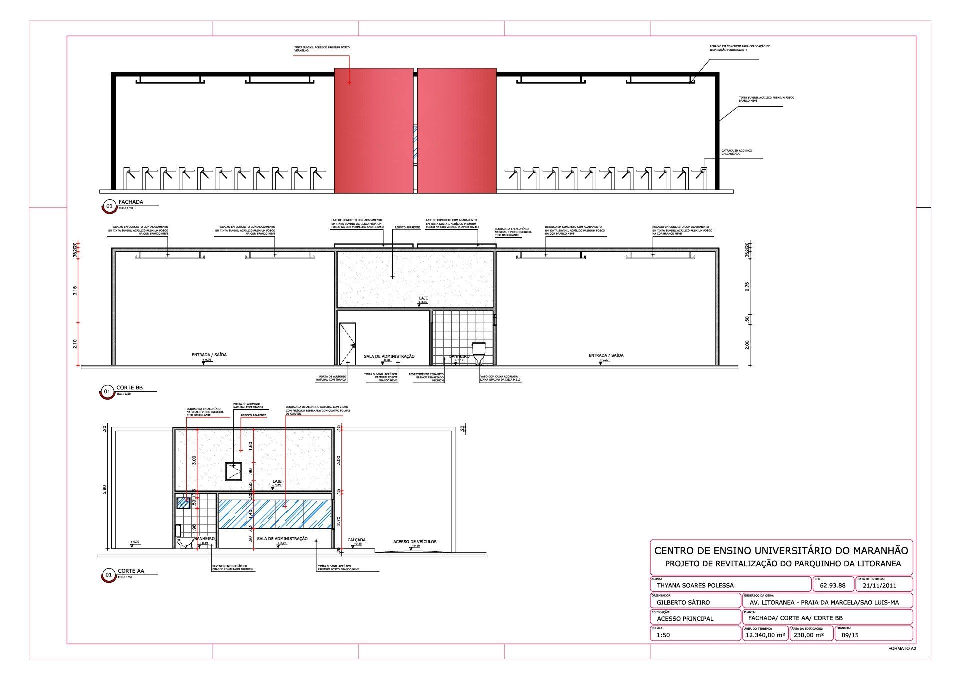
The objective of the project was to create a cohesive, well functioning square for public use. The newly improved space is to appeal to all ages and provide a meeting space for family and friends. The main focus is to create a food court, due to the demand of the local people and as the area is lacking the right infrastructure in the current state. Important elements to keep in mind are accessibility for all mobility levels, comfort, and most importantly, security. The area needs to have additional police and medical posts, as well as a barrier around the perimeter to control the flow of people.